カーサテラス鈴蘭台

CONCEPT
コンセプト
「一年中ここちよく暮らせる賃貸」— それがテストテラス鈴蘭台のコンセプトです。
高気密・高断熱で、冬は暖かく夏は涼しい。遮音性にも優れた空間で、健康的で静かな暮らしを。

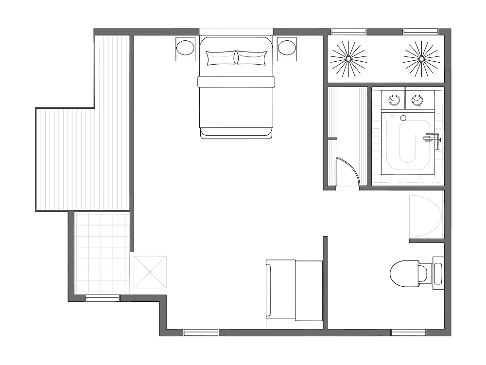
PLAN
プラン・物件概要
ここに説明のテキストが入ります。ここに説明のテキストが入ります。ここに説明のテキストが入ります。
ここに説明のテキストが入ります。ここに説明のテキストが入ります。
プラン

ここに説明のテキストを入れることができます。ここに説明のテキストを入れることができます。ここに説明のテキストを入れることができます。ここに説明のテキストを入れることができます。ここに説明のテキストを入れることができます。
ここに説明のテキストを入れることができます。ここに説明のテキストを入れることができます。ここに説明のテキストを入れることができます。
物件概要
| 物件名 | カーサテラス鈴蘭台 |
|---|---|
| 所在地 | 神戸市北区鈴蘭台東町 |
| 構造・間取り | 木造2階建てテラスハウス2LDK |
| 専有面積・住戸数 | 62.0m2 2戸 |
| 賃料 | 月額11万円 |
| 設備 | 太陽光発電・高効率給湯・エアコン完備 |
| 備考 | ペット可(小型犬・猫)・インターネット |
PERFORMANCE
性能
設計性能評価書

- 耐震等級3
- 劣化対策等級3
- 維持管理対策
- 断熱等級7
- 一次エネルギー消費量等級
- 気密性能
GALLERY
ギャラリー







ここに説明のテキストを入れることができます。ここに説明のテキストを入れることができます。ここに説明のテキストを入れることができます。ここに説明のテキストを入れることができます。ここに説明のテキストを入れることができます。
ここに説明のテキストを入れることができます。ここに説明のテキストを入れることができます。ここに説明のテキストを入れることができます。
SPECIFICATIONS
充実の住宅仕様

IHコンロ
説明分がここに入ります。説明分がここに入ります。説明分がここに入ります。

システムバス1坪サイズ
説明分がここに入ります。説明分がここに入ります。

ウォッシュレット
説明分がここに入ります。説明分がここに入ります。説明分がここに入ります。説明分がここに入ります。

無垢フローリング
説明分がここに入ります。説明分がここに入ります。

樹脂窓
説明分がここに入ります。説明分がここに入ります。説明分がここに入ります。

無料インターネット
説明分がここに入ります。説明分がここに入ります。説明分がここに入ります。
LOCATION
ロケーション
説明分がここに入ります。説明分がここに入ります。
説明分がここに入ります。説明分がここに入ります。説明分がここに入ります。

スーパー(1km・徒歩13分)
説明分がここに入ります。説明分がここに入ります。

最寄り駅(1km・徒歩8分)
説明分がここに入ります。説明分がここに入ります。

小学校(1km・徒歩13分)
説明分がここに入ります。説明分がここに入ります。

公園(1km・徒歩5分)
説明分がここに入ります。説明分がここに入ります。説明分がここに入ります。

病院(1km・徒歩13分)
説明分がここに入ります。説明分がここに入ります。

郵便局(1km・徒歩13分)
説明分がここに入ります。説明分がここに入ります。説明分がここに入ります。

ショッピングセンター(1km・徒歩13分)
説明分がここに入ります。説明分がここに入ります。

銀行(1km・徒歩13分)
説明分がここに入ります。説明分がここに入ります。説明分がここに入ります。